Ufficio in vendita

Villafranca Di Verona, Via Monte Baldo - Dossobuono
7 locali 7 locali
183 Mq 183 Mq
1 bagno 1 bagno

Ufficio in vendita

Villafranca Di Verona, Via Monte Baldo - Dossobuono

Descrizione annuncio

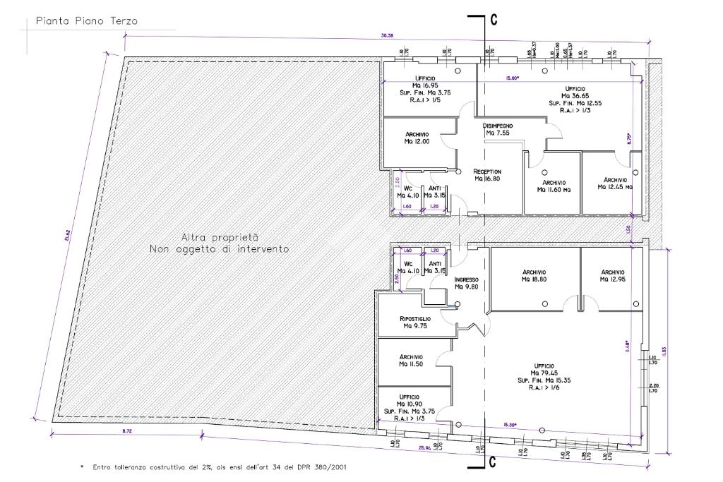
DOSSOBUONO - Nella ZAI di Dossobuono di Villafranca, in zona ad alto flusso veicolare, proponiamo in vendita un ufficio di 183 mq sito al terzo piano di un edificio di recente costruzione con accesso fronte Via Monte Baldo.

L'immobile si presenta attualmente in fase di ristrutturazione e si compone di ingresso su 2 ampi locali ad uso ufficio completamente cablati, ed ulteriori 4 locali ad uso archivio di diversa metratura.

Completa la proposta un servizio igienico ed un ascensore al piano.

Grazie alla posizione in cui è ubicato e l'ottimale distribuzione degli spazi, la soluzione si presta idonea a qualsiasi attività di carattere direzionale in particolar modo con esigenze di vicinanza alla zona industriale del paese.

LIBERO DA SUBITO. VENDESI.

Mostra tutto

Nelle vicinanze

Trasporto pubblico Trasporto pubblico
Dossobuono
Dossobuono
1,1 Km
Trasporto pubblico
310 m
Dossobuono
Dossobuono
1,2 Km
Ricariche auto elettriche Ricariche auto elettriche
Caselle Piazza dei Donatori | EnelX
2,8 Km
Scuole Scuole
Scuola Primaria Vittorio Locchi
950 m
Scuola Secondaria Rita Levi Montalcini
1,0 Km
Scuole
2,3 Km
Scuola Primaria Emilio Salgari
2,8 Km
Farmacia Farmacia
Farmacia Comunale Dossobuono
1,2 Km
Farmacia Peretti
1,6 Km
Dr.Caterina Donella e Lorena Zerba
2,6 Km
Farmacia
2,7 Km
Farmacia Madonna della Salute
3,0 Km
Supermercati Supermercati
Iper Famila
350 m
EuroSpin
920 m
Market Petao
2,5 Km
Negozi Negozi
Tutte... tute
1,1 Km
Negozi
1,2 Km
Panificio Filippi
1,2 Km
Corsato
1,2 Km
La Dispensa
2,7 Km
Bar Bar
Cafè Giardino
1,2 Km
Bar pasticceria Gioia
1,2 Km
Caffetteria Pasticceria Manzatti
1,5 Km
Bar Blondy's
1,9 Km
Bar
2,0 Km
Ristoranti Ristoranti
Gourmet
480 m
Mexì
620 m
Pizzeria La Sorpresa
1,1 Km
Pizzeria da Paolo
1,1 Km
L'Isola della Pizza
1,2 Km
Mostra tutto

Caratteristiche

Rif.:
61144714
Piano:
3 di 3 con ascensore (Piano alto)
Condizionamento:
Autonomo
Ascensore:
Riscaldamento:
Autonomo
Giardino:
Condominiale
Mostra tutto
Prezzo Prezzo
€ 250.000
Rata mutuo Rata mutuo
€ 1.178 / mese
Spese annue Spese annue
€ 1.000
Anche in affitto a
Proponi il tuo prezzoProponi il tuo prezzo

Classe Energetica

Questo immobile è esente da classe energetica
Anno di costruzione:
2005
Riscaldamento:
Autonomo
Tipo impianto:
Ad aria
Tipo alimentazione:
Aria

Ti interessa visionare l'immobile?

Fissa un appuntamento  Fissa un appuntamento

Richiedi informazioni

Clicca su Leggi per aprire l'informativa
* Questi campi sono obbligatori

Calcola il tuo mutuo

Semplice e senza impegno
Anticipo

( % )
Mutuo

( % )

pochi semplici passi

inserisci i tuoi dati
Questionario completato
Grazie per aver richiesto un appuntamento senza impegno con un nostro Consulente del Credito e Assicurativo.

Hai inserito correttamente tutti i dati necessari e a breve riceverai una e-mail con un link da convalidare per inviare i tuoi dati.
Affiliato
La Decima Impresa Srl
Via Gardesana, 73 37012 Bussolengo (VR)

Il nostro staff


  • Diandra Belotti
    Coordinatrice

  • Chiara Criscione
    Affiliata

  • Davide Argentieri
    Collaboratore

  • Anita Zoccatelli
    Collaboratrice

  • Graziano Neri
    Affiliato
Via Gardesana, 73 37012 Bussolengo (VR)
Zona: Bussolengo
Mostra su mappa
Orari: Lunedì: 9:00 _ 12:30 / 14:30 _ 19:00 Martedì: 9:00 _ 12:30 / 14:30 _ 19:00 Mercoledì: 9:00 _ 12:30 / 14:30 _ 19:00 Giovedì: 9:00 _ 12:30 / 14:30 _ 19:00 Venerdì: 9:00 _ 12:30 / 14:30 _ 19:00 Sabato: 9:00 _ 12:30 Domenica: CHIUSO
Affiliato
La Decima Impresa Srl
Via Gardesana, 73 37012 Bussolengo (VR)

2026 Tecnocasa Franchising S.p.A. - P. IVA 08365160152 - Via Monte Bianco 60/A 20089 Rozzano (MI). Ogni agenzia ha un proprio titolare ed è autonoma. Privacy policy | Policy utilizzo | Cookie policy