Negozio in vendita

Garda, Via Don C. Gnocchi
€ 950.000
11 locali 11 locali
288 Mq 288 Mq
2 bagni 2 bagni

Negozio in vendita

Garda, Via Don C. Gnocchi

Descrizione annuncio

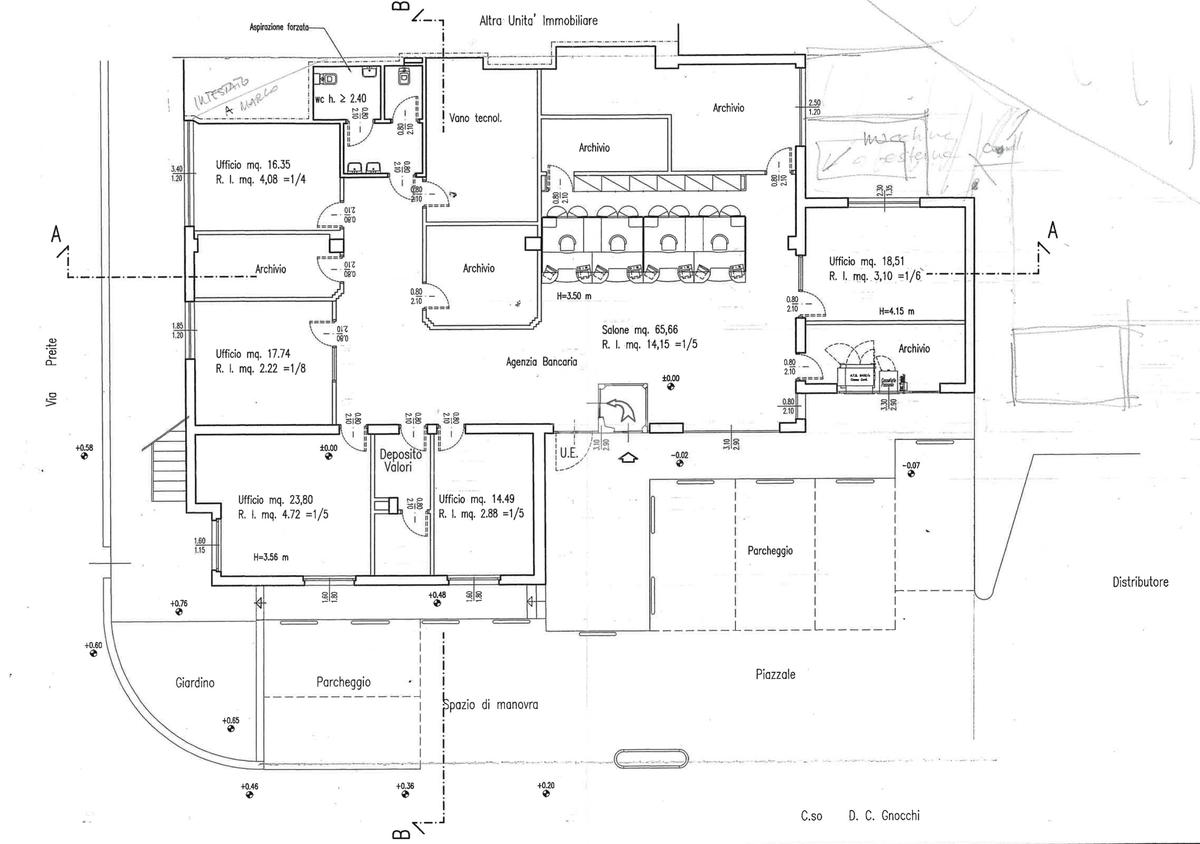
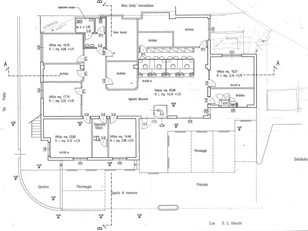
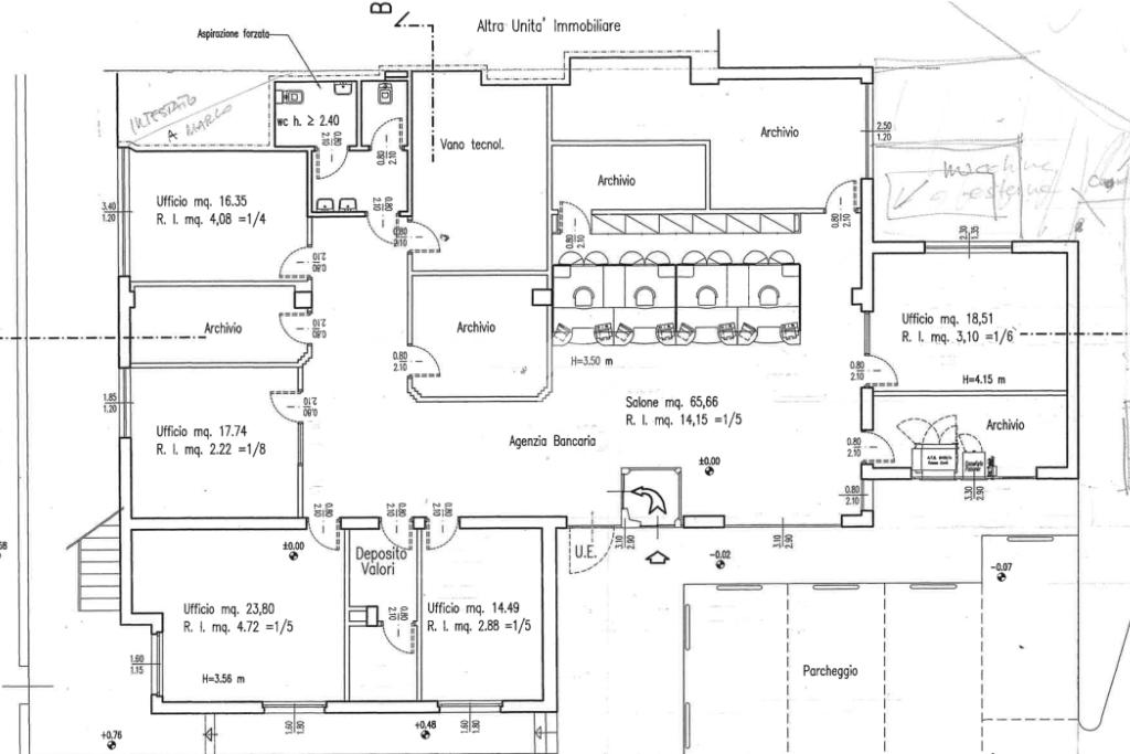
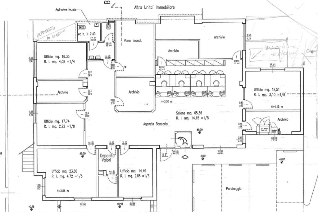
GARDA - Nella zona centrale del paese lungo la via principale, si propone in vendita per investimento un ufficio di 288 mq storicamente locato da un importante istituto bancario.

La soluzione si distribuisce su un unico livello ed è composta da un ingresso vetrinato fronte strada che da accesso interno a 11 locali adibiti ad ufficio più 2 servizi igienici.

Completano la proposta 5 posti auto ad uso esclusivo di impiegati o clientela.

Grazie alla posizione strategica, al traffico costante e alla potenzialità di sviluppo dell’area circostante l'immobile risulta un'ottima opportunità di investimento.

VENDESI PER INVESTIMENTO.

Mostra tutto

Nelle vicinanze

Trasporto pubblico Trasporto pubblico
Garda
Garda
350 m
Flixbus
Flixbus
360 m
Garda
670 m
Ricariche auto elettriche Ricariche auto elettriche
Be Charge Hotel Villa Madrina
580 m
Madrigale the Panoramic Resort
1,4 Km
Costermano Repubblica | EnelX
2,5 Km
Scuole Scuole
Scuole
100 m
Farmacia Farmacia
Farmacia del Garda
330 m
Farmacia Costermano
2,4 Km
Ospedali Ospedali
White Cross ambulance
340 m
Ospedali
550 m
Croce Rossa Italiana
2,8 Km
Croce Rossa Italiana Comitato di Bardolino Baldo Garda
2,8 Km
Supermercati Supermercati
Supermercati
170 m
DPiu' Discount
310 m
Fresco mio
410 m
GardaGourmet
1,5 Km
DeBeni
2,5 Km
Negozi Negozi
Panificio Bullio
110 m
Brugi
350 m
Negozi
440 m
I Dolci della Regina
460 m
P55
530 m
Bar Bar
Bar
120 m
Alla Calle Enoteca
470 m
Bar Blu Note
470 m
Bar Officina Nautica
480 m
Bar La Rosa
510 m
Ristoranti Ristoranti
Pizzeria Milano
10 m
Bar Pizzeria First Meeting
60 m
Jolly
140 m
Al Graspo
380 m
Thai Orchidee
400 m
Mostra tutto

Caratteristiche

Rif.:
61137396
Piano:
Terra di 2
Totale piani:
2
Posti auto:
5
Condizionamento:
Autonomo
Ascensore:
No
Mostra tutto
Prezzo Prezzo
€ 950.000
Rata mutuo Rata mutuo
€ 4.502 / mese
Spese annue Spese annue
€ 370
Proponi il tuo prezzoProponi il tuo prezzo

Classe Energetica

Questo immobile è esente da classe energetica
Anno di costruzione:
1980
Riscaldamento:
Autonomo
Tipo impianto:
Ad aria
Tipo alimentazione:
Aria

Ti interessa visionare l'immobile?

Fissa un appuntamento  Fissa un appuntamento

Richiedi informazioni

Clicca su Leggi per aprire l'informativa
* Questi campi sono obbligatori

Calcola il tuo mutuo

Semplice e senza impegno
Anticipo

( % )
Mutuo

( % )

pochi semplici passi

inserisci i tuoi dati
Questionario completato
Grazie per aver richiesto un appuntamento senza impegno con un nostro Consulente del Credito e Assicurativo.

Hai inserito correttamente tutti i dati necessari e a breve riceverai una e-mail con un link da convalidare per inviare i tuoi dati.
Affiliato
La Decima Impresa Srl
Via Gardesana, 73 37012 Bussolengo (VR)

Il nostro staff


  • Diandra Belotti
    Coordinatrice

  • Chiara Criscione
    Affiliata

  • Davide Argentieri
    Collaboratore

  • Anita Zoccatelli
    Collaboratrice

  • Graziano Neri
    Affiliato
Via Gardesana, 73 37012 Bussolengo (VR)
Zona: Bussolengo
Mostra su mappa
Orari: Lunedì: 9:00 _ 12:30 / 14:30 _ 19:00 Martedì: 9:00 _ 12:30 / 14:30 _ 19:00 Mercoledì: 9:00 _ 12:30 / 14:30 _ 19:00 Giovedì: 9:00 _ 12:30 / 14:30 _ 19:00 Venerdì: 9:00 _ 12:30 / 14:30 _ 19:00 Sabato: 9:00 _ 12:30 Domenica: CHIUSO
Affiliato
La Decima Impresa Srl
Via Gardesana, 73 37012 Bussolengo (VR)

2026 Tecnocasa Franchising S.p.A. - P. IVA 08365160152 - Via Monte Bianco 60/A 20089 Rozzano (MI). Ogni agenzia ha un proprio titolare ed è autonoma. Privacy policy | Policy utilizzo | Cookie policy